Información propiedad

Chalet adosado en Carbajal de la Legua

Referencia: 1377

V E N D I D O

Precio: 185.000,00€


OBRA NUEVA

Chalet adosado en el pueblo de Carbajal, teniendo todas las ventajas de vivir la tranquilidad y disponer de todos los servicios comunitarios.
Muy buena orientación (este-oeste) sol todo el día y muy luminoso
Muy buena distribución del espacio.
Dispone de porche y jardín para pasar tus mejores momentos


Otros datos:
Cimentación y estructura en hormigón armado.
Chalet de ladrillo y termoarcilla, revestido de cotegrán y enlucidos en madera. Tabiquería interior en ladrillo.
Escalera interior de mármol pulido con barandilla de madera.
Suelos de parquet flotante de 14 mm. de roble en salón, hall, dormitorios, pasillos y bajocubierta. Cocina, baños y escalera a garaje en gres.
Garaje cuenta con solado de hormigón pulido. Puerta basculante.
Ventanas de PVC con sistema de doble acristalamiento con vídrio climalit 4/12/4, con persiana monoblock con lama de PVC
Interiores de pintura plástica lisa, mate, lavable.
Preinstalación de chimenea francesa.
Doble circuito de calefacción.

Propiedad y Ubicación

Chalet Adosado/pareado en Venta
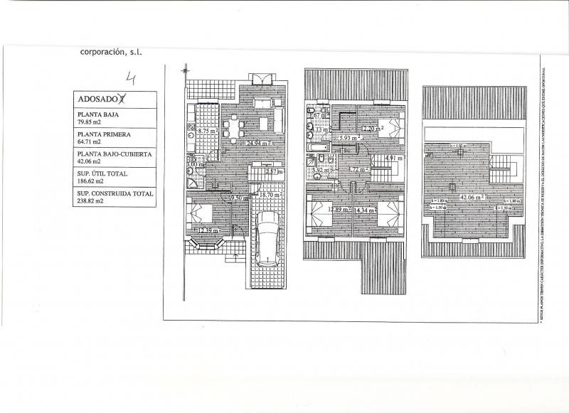
Superficie construida: 238 m²
Superficie útil: 186 m²

Comunidad: Castilla y León
Provincia: León
Localidad: Carbajal de la Legua
Zona/barrio: Carbajal,Sariegos
Distrito Postal: 24196
Orientación: O-E

Características

Mobiliario: Sin muebles
Vivienda Libre  
Núm.dormitorios: 4
Núm. Baños: 3
Cocina: Vacia
Núm.Armarios Empotrados: 4
 Con buhardilla
 Con porche
 Con plaza de garaje
 Calefacción: Individual
 Agua caliente: Individual
 Caldera: Gas Natural





carousel fotos de cada piso

Videos de cada piso
Estoy interesado/Contraoferta

imprimir esta página


Me interesa esta propiedad