Información propiedad

Ultimos Pisos en Venta en Santa María Páramo

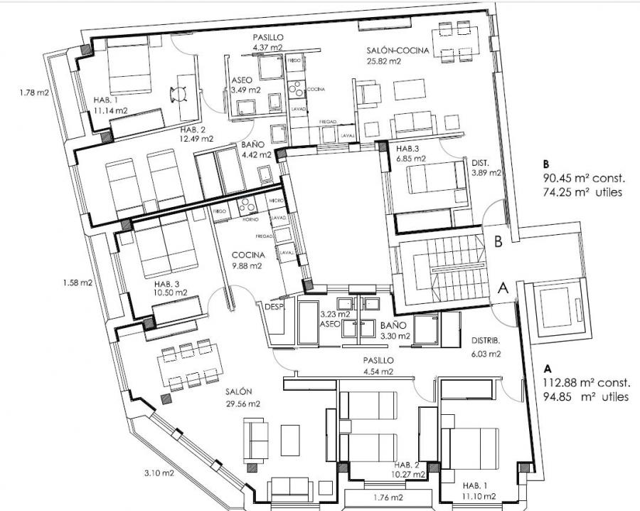
Referencia: 1444

V E N D I D O

Precio: 94.000,00€


Pisos nuevos en el centro de Santa María del Páramo.

ULTIMOS PISOS EN VENTA:
112,88m² Constr.,94,85² útiles: 1ºDcha: 94.000 euros
112,88m² Constr.,94,85² útiles: 3ºDcha: 103.000 euros
Calidades:
Fachada de ladrillo cara vista y piedra caliza
Puerta de entrada blindada
Carpintería exterior en PVC de triple junta, persianas y biombo con aislamiento térmico
Acristalamiento doble bajo emisivo 4/16/4 y de seguridad
Carpinteria interior de madera lacada en blanco
Cerámica/gres porcelámico en baños y cocinas de 1ªcalidad.
Ascensor para seis personas accesible minusválidos.
Pavimento laminado de madera
Pintura plástica
Aislamiento térmico y acústico en fachadas exteriores, suelos y falsos techos en toda la vivienda.
Calefacción por radiadores de aluminio y ACS con caldera de gas individual. Radiadores toalleros en baños.
Iluminación a base de downlihts LED en todas las estancias

Propiedad y Ubicación

Piso en Venta
Superficie construida: 112 m²
Superficie útil: 94 m²
Fecha de construcción: 2018

Comunidad: Castilla y León
Provincia: León
Localidad: Santa María del Páramo
Zona/barrio: centro
Distrito Postal: 24700
Plantas edificio: 3

Características

Mobiliario: Opcional
Vivienda Libre  
Núm.dormitorios: 3
Núm. Baños: 2
Núm.Ascensores: 1
Acceso minusválidos en entrada edificio
Portero automático
 Calefacción: Individual
 Agua caliente: Individual
 Caldera: Gas Natural





carousel fotos de cada piso

Videos de cada piso
Estoy interesado/Contraoferta

imprimir esta página


Me interesa esta propiedad